Mới đây, Tập đoàn Nhà đất Hàn Quốc (Land & Housing Corporation – LH), một trong những “ông lớn” của Chính phủ Hàn Quốc trong lĩnh vực phát triển đô thị, đã chính thức công bố danh sách các nhà đầu tư tư nhân được lựa chọn làm đối tác đàm phán ưu tiên cho dự án Khu đô thị mới Đông Nam.
Đây được xem là K-New Town đầu tiên tại Việt Nam, đánh dấu bước đi chiến lược của Hàn Quốc trong việc xuất khẩu mô hình quy hoạch đô thị đã làm nên tên tuổi của họ suốt nhiều thập kỷ.
Danh sách đối tác cho thấy quy mô và tham vọng không hề nhỏ của dự án. Hai tập đoàn xây dựng lớn Hàn Quốc là Hyundai Engineering & Construction (Hyundai E&C) và POSCO Engineering & Construction (POSCO E&C) cùng góp mặt, bên cạnh các doanh nghiệp khác như Omega Construction, JR Asset Management và Jeil Construction.
Ở khối công, Tổng công ty Cơ sở hạ tầng và Phát triển đô thị Hàn Quốc (KIND) cũng dự kiến tham gia liên minh hợp tác, củng cố thêm “bệ đỡ” về tài chính và kinh nghiệm triển khai quốc tế.

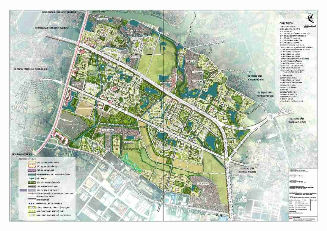
Quy hoạch khu đô thị mới Đông Nam.
Theo quy hoạch sơ bộ, Khu đô thị mới Đông Nam sẽ được phát triển trên quỹ đất khoảng 8,1 triệu m2 (tương đương 810 ha) tại tỉnh Bắc Ninh, cách trung tâm Hà Nội khoảng 18 km.
Nếu so sánh, diện tích này rộng gấp khoảng 1,5 lần quận Hoàn Kiếm (cũ) – khu vực lõi lịch sử của Thủ đô.
Tuy nhiên, khác với Hoàn Kiếm mang đậm dấu ấn quá khứ, khu đô thị mới này được định hình như một đô thị vệ tinh thông minh, nơi mọi chức năng sống, làm việc, giải trí được tích hợp trong cùng một không gian.
Dự án được thiết kế để phục vụ khoảng 100.000 cư dân, với hệ thống nhà ở đa dạng, khu thương mại – dịch vụ, văn phòng, không gian công cộng và mảng xanh được quy hoạch đồng bộ.
Mục tiêu không chỉ là “xây nhà”, mà là kiến tạo một môi trường sống chất lượng cao, giảm áp lực cho khu vực nội đô Hà Nội và đón đầu xu hướng giãn dân, phát triển đa cực.

Một góc Bắc Ninh
>> Xem thêm các dự án khu đô thị tại Bắc Ninh
Về lộ trình triển khai, sau khi nhận được chấp thuận chính thức từ các cơ quan chức năng Việt Nam, LH sẽ tiến hành các bước tiếp theo như tổ chức đấu thầu nhà đầu tư và thành lập công ty chuyên biệt (SPC) tại địa phương để trực tiếp thực hiện dự án.
Lợi thế lớn của khu đô thị nằm ở vị trí chiến lược: liền kề chuỗi đô thị – công nghiệp năng động của Bắc Ninh, nơi đã và đang hình thành các khu đô thị quy mô lớn như Him Lam, Vinhomes Bắc Ninh, cùng các khu công nghiệp Yên Phong, Quế Võ – “cứ điểm” của nhiều tập đoàn công nghệ toàn cầu.
K-New Town, hay Korean New Town, là mô hình đô thị vệ tinh nổi tiếng của Hàn Quốc, được triển khai từ thập niên 1990 nhằm giảm tải cho Seoul và thúc đẩy phát triển kinh tế vùng. Những cái tên như Bundang, Ilsan, Pangyo không chỉ là nơi ở của hàng trăm nghìn người mà còn trở thành biểu tượng cho quy hoạch hiện đại, hạ tầng đồng bộ và chất lượng sống cao tại châu Á.
Việc mô hình này xuất hiện tại Việt Nam vì thế không chỉ là một dự án bất động sản, mà còn là phép thử cho một cách tiếp cận mới trong phát triển đô thị tương lai.
Join The Discussion