Theo Công văn, UBND tỉnh Đồng Tháp nhận được Công văn số 3195/SXD-QLN&TTBDS ngày 16/4/2026 của Sở Xây dựng đề xuất phương án thực hiện dự án. Căn cứ kết luận chỉ đạo tại cuộc họp ngày 20/4/2026, tỉnh giao nhiệm vụ cụ thể cho hai đơn vị chủ chốt:
- Giao UBND phường Đạo Thạnh rà soát việc dự kiến triển khai khu tái định cư tại vị trí 2 và vị trí 3, khẩn trương phê duyệt quy hoạch chi tiết và thực hiện các thủ tục khác theo quy định. Phường phải thông tin kịp thời về Sở Xây dựng để làm cơ sở hoàn chỉnh hồ sơ lựa chọn nhà đầu tư.
- Giao Sở Xây dựng chủ trì, phối hợp với các đơn vị liên quan rà soát toàn bộ nội dung triển khai dự án, bao gồm công bố thông tin dự án, danh mục dự án mời gọi đầu tư, đảm bảo trình tự thủ tục theo đúng quy định pháp luật. Sở cần tính toán phương án phân kỳ đầu tư hợp lý, đảm bảo tính khả thi trong triển khai thực tế; khẩn trương hoàn chỉnh hồ sơ và tổ chức lựa chọn nhà đầu tư.
Văn bản nhấn mạnh tinh thần “khẩn trương” và “đảm bảo quy định”, phản ánh nỗ lực của tỉnh trong việc đẩy nhanh tiến độ một dự án quan trọng sau quá trình sáp nhập hành chính.

Quy mô hơn 184 ha, vốn đầu tư khoảng 26.000 tỷ đồng
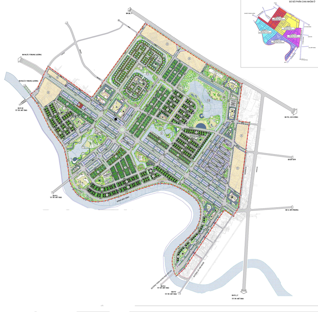
Khu đô thị Đông Bắc thành phố Mỹ Tho (trước đây thuộc tỉnh Tiền Giang, nay liên quan địa bàn phường Đạo Thạnh sau sắp xếp đơn vị hành chính) là một trong những dự án đô thị lớn nhất khu vực Đồng bằng sông Cửu Long.
Dự án được chấp nhận thuận lợi chủ đầu tư theo Quyết định 1412/QĐ-UBND năm 2025 của UBND tỉnh Tiền Giang (trước khi sáp nhập), với tổng vốn đầu tư khoảng 26,211 tỷ đồng (hơn 1 tỷ USD) . Diện tích đất sử dụng khoảng 184,3 ha (1.843.072 m2) , không bao gồm một phần đất ở hiện hữu chỉnh trang, di tích lịch sử và đất đường ven sông.

Hiện nay, hơn 73% diện tích dự án là đất nông nghiệp, phần còn lại là đất khác. Dự án quy hoạch chủ yếu nhà ở thấp tầng, kết hợp nhà ở thương mại, nhà ở tái định cư và nhà ở xã hội với khoảng 4.500 căn. Tỉnh dành hơn 15 ha để phát triển nhà ở xã hội, góp phần giải quyết nhu cầu an cư cho người dân bị ảnh hưởng bởi dự án và các đối tượng chính sách.
Đồng bộ hạ tầng, định hình đô thị ven sông hiện đại
Dự án đầu tư đồng bộ hạ tầng kỹ thuật: hệ thống giao thông nội khu, san nền, thoát nước mưa – nước thải, cấp nước, điện, thông tin liên lạc… Kiến trúc công trình hướng đến hiện đại, hài hòa với cảnh quan ven sông Bảo Định, đảm bảo diện tích đỗ xe và không gian xanh. Thời hạn dự án là 50 năm.
Đây không chỉ là khu đô thị mới mà còn là động lực phát triển kinh tế – xã hội, góp phần đô thị hóa nhanh chóng cho khu vực phía Đông Bắc Mỹ Tho sau sáp nhập hành chính.
Sau đợt sắp xếp đơn vị hành chính lớn năm 2025, phường Đạo Thạnh (hình thành từ việc sáp nhập Phường 4, Phường 5 cũ của TP. Mỹ Tho và xã Đạo Thạnh) trở thành đơn vị hành chính quan trọng của tỉnh Đồng Tháp. Việc triển khai Khu đô thị Đông Bắc nằm trong chiến lược phát triển đô thị tỉnh, kết nối với các hạ tầng lớn như tuyến đường ven biển, cảng tổng hợp và các khu vực thương mại dịch vụ lân cận (gần khu vực Aeon Mall đang hình thành).
>>Xem TOP 5 khu đô thị lớn nhất Đồng Tháp
Tái định cư, khởi công sớm nhất
Việc rà soát khu tái định cư tại vị trí 2 và 3 là bước quan trọng nhằm đảm bảo quyền lợi người dân. Đồng thời, việc tính toán phương án phân kỳ đầu tư giúp dự án khả thi hơn trong bối cảnh nguồn lực và tiến độ giải phóng mặt bằng.
Sau khi hoàn thành, Khu đô thị Đông Bắc sẽ góp phần thay đổi diện mạo đô thị Mỹ Tho, tạo việc làm, thu hút đầu tư, thúc đẩy thương mại – dịch vụ và nâng cao chất lượng sống cho cư dân. Đây cũng là minh chứng cho sự quyết liệt của lãnh đạo tỉnh Đồng Tháp trong việc thực hiện các dự án trọng điểm sau sáp nhập.
Công văn 1145/UBND-ĐTQH đánh dấu bước tiến mới quan trọng trong hành trình triển khai Khu đô thị Đông Bắc thành phố Mỹ Tho. Với sự phối hợp chặt chẽ giữa Sở Xây dựng, UBND phường Đạo Thạnh và các sở ngành liên quan, dự án kỳ vọng sẽ sớm hoàn thiện hồ sơ, lựa chọn được nhà đầu tư uy tín và khởi công trong thời gian gần nhất.
Tỉnh Đồng Tháp đang thể hiện cam kết mạnh mẽ: phát triển đô thị bền vững, lấy người dân làm trung tâm, đảm bảo hài hòa giữa phát triển kinh tế và an sinh xã hội. Sự thành công của dự án không chỉ mang lại một khu đô thị hiện đại mà còn góp phần xây dựng Mỹ Tho trở thành đô thị trung tâm năng động của tỉnh Đồng Tháp trong tương lai.
Join The Discussion